Dacheindeckung
Dachschindeln Färbung:
Dachziegelblech Färbung:
EPDM- Folienset:
Komplettset 1,5mm (nach DIN 18531 Mindestschichtdicke) inkl. Kleber, Ablaufgulli und Kanthölzer
Dachpappe:
Bitumen getränkte Pappe, eingepresst mit grobkörnigem Sand, wird oft als Feuchtigkeitssperre direkt unter die Dacheindeckung platziert (zweite äußere Schicht der Dachhaut (Unterdeckung).
Dachschindeln:
Durch unten gelagerte Klebepunkte verbinden sich die Schindeln bei Wärme oder Sonneneinwirkung ganz von selbst miteinander. In 4 Farben erhältlich.
Dachziegelblech:
aus Stahl, inklusive Diffusionsfolie, Unterverlattung, Rundfirst, Firstendscheiben und Schrauben.
Boden
Holzfußboden:
Hobeldielen:
Diese gehobelten Dielen sind aus hochwertigem Holz gefertigt und haben eine glatte Oberfläche.
Unterlegriegel:
Kunststoff (Standard):
zum Schutz vor Feuchtigkeit (werden unter die Blockbohlen gelegt) Maße: 3,5 x 8,8 x 300 cm Breite flache Seite: 25 mm
Farbanstrich

Der Farbanstrich wird maschinell durchgeführt. Deshalb wird eine zweischichtige Behandlung der Wände (Außenseite) sowie der Türen und Fenster (Außen- und Innenseite) vorgenommen.
Lieferzeit (mit Anstrich): 12-15 Wochen
Achtung!! Da das Gartenhaus nur von der Außenseite gestrichen wird, kann es nicht einfach spiegelverkehrt aufgebaut werden.
Dachrinne
Kunststoffdachrinnen Farbe:
Kunststoff:
vom Markenhersteller MARLEY, halbrund 100 mm (RG 100) inklusive sämtlicher Halterungen und 200 cm Fallrohr.
Zink:
8-teilig, RG 250, inklusive sämtlicher Halterungen und 200 cm Fallrohr > kinderleichte Steck-Montage von Zambelli (ohne Lötgerät und ohne Biegewerkzeug).
Kupfer:
8-teilig, RG 250, inklusive sämtlicher Halterungen und 200 cm Fallrohr > kinderleichte Steck-Montage von Zambelli (ohne Lötgerät und ohne Biegewerkzeug).
Extras
-
Gartenhaus0,00 €
-
Lieferung
für DE & NL0,00 €
Gartenhaus „Wuppertal“ mit „50 mm“ Wandstärke
Modernes Gartenhaus mit „Krüppelwalmdach“ aus hochwertigem nordischen Fichtenholz.
Im Lieferumfang enthalten:
- Massivholzdach aus Nut- und Federbrettern
- alle Blockbohlen mit 4-fach Eckausfräsungen zum Schutz vor Wind und Regen
- Fenster & Türen inkl. Schloss und Drückergarnitur
- Befestigungszubehör (für Haus und Zubehör) kostenlos
- alle Verglasungen aus Echtglas
- Holz wird unbehandelt geliefert (Farbanstrich bei vielen Modellen ab Werk möglich)
- Montagezeichnung und deutsche Anleitung
Der Aufbau unseres Gartenhauses „Wuppertal“ ist kinderleicht. Für ein tragfähiges Fundament (z. B. eine Pflasterfläche) muss gesorgt sein. Lege die unterste Holzbohle niemals direkt auf den Boden bzw. das Fundament (z. B. Pflasterfläche), sondern verwende immer eine gegen Feuchtigkeit resistente Zwischenlage, z. B. unsere optionalen Unterlegriegel aus Kunstsoff. Sorge zusätzlich für einen ausreichenden Holzschutz (Farbanstrich) des Gartenhauses, damit du auch in vielen Jahren noch Freude an deinem neuen Qualitätshaus hast.
Hinweis: Das Gartenhaus kann problemlos auch seitenverkehrt aufgebaut werden!
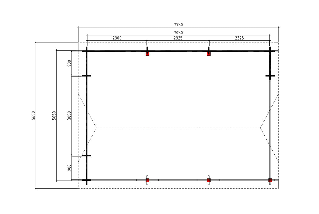
Grundfläche |
36,11 m2 |
Wandstärke |
50 mm |
Außenmaß |
745 x 535 cm |
Innenmaß |
715 x 505 cm |
Firsthöhe |
325 cm |
Holzart |
Nordisches Fichtenholz |
Türen |
0 |
Fenster |
0 |
Montageanleitungen:
- Kunststoff Dachrinne
- Zink/Kupfer Dachrinne
- Unterlegriegel
- Holzfussboden
- EPDM-Folie
- Dachziegelbleche
- Dachschindeln
Videos:









